In de gezellige wijk ‘Krommeweg’ vind je deze fijne tussenwoning aan de Ring met een royaal woonoppervlak van maar liefst 122 m².
Zodra je binnenstapt, merk je het direct: deze woning is met zorg en liefde bewoond geweest en altijd goed onderhouden. Het huis biedt een prettige indeling met op de begane grond een ruime woonkamer, keuken en toiletruimte. Op de eerste verdieping bevinden zich drie volwaardige slaapkamers en de badkamer. De zolderverdieping beschikt over een voorzolder en een vierde slaapkamer, met bovendien de mogelijkheid om hier een extra (slaap)kamer te creëren.
Natuurlijk zijn er zaken die je naar eigen smaak wilt moderniseren en dat maakt het juist zo leuk! Zo creëer je hier jouw eigen thuis.
De locatie is een groot pluspunt! De woning ligt in een rustige, kindvriendelijke buurt op korte afstand van het centrum van Hendrik-Ido-Ambacht. Op loopafstand bevindt zich winkelplein ‘Louwersplein’ voor de dagelijkse boodschappen. Ook basisscholen, zwembad ‘De Louwert’ en het mooie Baxpark zijn in de directe omgeving te vinden. De uitvalswegen A15 en A16 zijn snel en eenvoudig bereikbaar.
Kortom: een ruime woning op een uitstekende locatie met veel mogelijkheden.
Van harte welkom!
INDELING
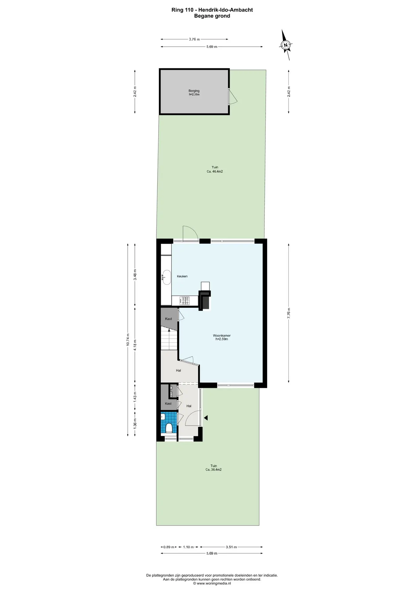
BEGANE GROND
Hal
Entree in de opvallend ruime hal met toegang tot de toiletruimte, een diepe bergkast met toegang tot een praktische bergruimte onder de schuine kap, de meterkast en de trapopgang naar de verdieping.
Toiletruimte
Geheel betegeld met moderne wand- en vloertegels en ingericht met een wandcloset, een fonteintje en een radiator.
Woonkamer
Ruime en sfeervolle woonkamer met veel lichtinval dankzij de grote ramen aan zowel de voor- als achterzijde. Aan de voorzijde bevindt zich het zitgedeelte, aan de achterzijde het eetgedeelte dat in open verbinding staat met de keuken. De open haard vormt het gezellige middelpunt van de ruimte en zorgt voor warmte en een extra sfeerdimensie.
Keuken
De open keuken is ruim van opzet en beschikt over diverse kasten, laden en inbouwapparatuur. Via de loopdeur is er directe toegang tot de achtertuin.
1e VERDIEPING
Overloop met toegang tot drie volwaardige slaapkamers en de trapopgang naar de tweede verdieping.
Slaapkamer 1
Gelegen aan de achterzijde, dit betreft de hoofdslaapkamer.
Slaapkamer 2
Aan de voorzijde gelegen, voorzien van een wastafel.
Slaapkamer 3
Aan de achterzijde, met praktische vaste kastenwand.
Badkamer
Ruime, geheel betegelde badkamer met lichte wand- en vloertegels. Het geheel is goed onderhouden en ingericht met een ligbad, een aparte douche, een toilet en een wastafelmeubel.
2e VERDIEPING
Voorzolder
Praktische ruime voorzolder met een dakvenster, aansluiting voor de wasmachine en opstelling van de Cv-ketel.
Slaapkamer 4
Grote zolderkamer met dakkapel aan de achterzijde. Dankzij de ruime opzet is het mogelijk om hier een extra kamer te creëren. Achter de knieschotten is volop bergruimte aanwezig.
TUIN
De voortuin (ca. 8 meter diep) en achtertuin (ca. 9,5 meter diep) zijn verzorgd aangelegd met bestrating, diverse borders met vaste aanplant en een achterom.
BIJZONDERHEDEN
Bouwjaar 1976
Houten kozijnen met dubbele beglazing
Betonnen vloeren
Goed onderhouden, met ruimte voor eigen modernisering
4 slaapkamers, mogelijkheid tot een 5e kamer
Schilderwerk goed onderhouden
Oplevering in overleg
In de koopovereenkomst wordt een ouderdomsclausule opgenomen:
“Het is koper bekend dat de onroerende zaak meer dan 48 jaar oud is, wat betekent dat de eisen die aan de bouwkwaliteit gesteld mogen worden aanzienlijk lager liggen dan bij nieuwe woningen. In afwijking van artikel 6.3 van deze koopakte en artikel 7:17 lid 1 en 2 BW komt het geheel of ten dele ontbreken van één of meer eigenschappen van de onroerende zaak voor normaal en bijzonder gebruik en het eventueel anderszins niet-beantwoorden van de zaak aan de overeenkomst als gevolg van voornoemde ouderdom voor rekening en risico van koper komen.”
Nadrukkelijk vermelden wij dat deze informatieverstrekking niet als een aanbieding of offerte mag worden beschouwd. Aan deze gegevens kunnen derhalve geen rechten worden ontleend en zijn wijzigingen voorbehouden.
De vermelde afmetingen zijn lengte/ diepte x breedte (bezien vanuit het binnentreden van een ruimte).
De vermelde afmetingen/ oppervlakten in deze informatie zijn gemeten op basis van de BBMI (Branche Brede Meetinstructie). De meetinstructie is bedoeld om een meer eenduidige manier van meten toe te passen voor het geven van een indicatie van de gebruiksoppervlakte. De meetinstructie sluit verschillen in meetuitkomsten niet volledig uit, door bijvoorbeeld interpretatieverschillen, afrondingen of beperkingen bij het uitvoer en van de meting.
Let op! De foto’s in deze verkooppresentatie zijn genomen met een groothoeklens. Voor verkrijging van een reële indruk van de ruimten dient u de foto’s te spiegelen aan de vermelde afmetingen!
Indien er plattegronden aan deze brochure zijn toegevoegd, houdt u er dan rekening mee dat deze plattegronden slechts een indicatie geven van de indeling.
Een mondelinge overeenstemming tussen de particuliere verkoper en de particuliere koper is niet rechtsgeldig. Met andere woorden: er is geen koop. Er is pas sprake van een rechtsgeldige koop als de particuliere verkoper en de particuliere koper de koopovereenkomst hebben ondertekend. Dit vloeit voort uit artikel 7:2 van het Burgerlijk Wetboek. Een bevestiging van de mondelinge overeenstemming per e-mail of een toegestuurd concept van de koopovereenkomst wordt overigens niet gezien als een ondertekende koopovereenkomst